![]() |
![]() |
![]() |
ZJTL-Y预粉立磨机百瑞彩票是我公司在充分吸取国外立磨机作为预粉磨水泥成套工艺技术的基础上,大胆创新、重点攻关,开发出了新型预粉磨设备。该系统集细碎、粉磨、集粉、输送为一体,与辊压机相比,粉磨效率高、电耗低,系统装机容量比辊压机系统低,特别是年维修费用为辊压机系统的50%以上,具有工艺流程简单、占地面积小、无粉尘污染、磨耗低、检修率低、运行可靠等显著优点。

ZJTL-Y预粉立磨机是通过三个对称转动的锥辊在高压作用下,随磨盘转动将磨盘上的物料进行剪切、挤压粉碎和研磨,集平盘和锥形磨辊的结构形状设计和料层粉磨技术,极大地降低单位能源消耗,可广泛应用于建材、冶金、化工等行业的物料粉磨工艺。可与现有球磨机配合组成循环预粉磨、循环分级预粉磨等工艺系统。综合粉磨电耗降低30%—40%,产量提高50%—100%。
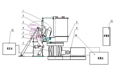
ZJTL-Y预粉立磨机主要由电机、减速机、磨盘、磨辊、液压装置、润滑装置等组成。物料经入口溜子进入磨盘中央,由于磨盘转动产生离心力,物料被甩入粉磨区,由被加压的磨辊对物料进行挤压和研磨。粉碎后的物料经过磨盘外圈,掉入磨下部壳体内,被刮料板刮入下料溜子排出。
一、滑动压差小,粉磨效率高

同力预粉立磨机水泥立磨机是集平盘和锥形磨辊的结构形式为一体,磨盘与磨辊的相对滑动差小,因而与其他形式辊磨在同规格的条件下相比,产量较高。
二、自动抬辊,空载启动

百瑞彩票 磨辊可以自行抬落,不用人工铺料,实现空载启动,以降低电动机的启动能力。磨辊可以用翻辊油缸,翻出机壳外,无论对安装和维修十分方便。
三、磨损少,使用寿命长

磨辊与磨盘之间预留间隙,并设有接近开关进行限位,可避免辊子与衬板发生金属磨擦。对磨辊中的轴承采用强制润滑,保护轴承。磨辊上设置几道轴承密封,防止漏油。为了防止微粉的侵入,还专门配备了密封风机。
四、增产降耗,效果显著

使用该预粉立磨机工艺,实现了挤压与剪切力粉磨新技术推广应用,比现有的辊压机粉磨效果更高。能够使水泥熟料生产能力提高50%以上,电耗降低30%—40%,实现节能减排和高效粉磨高产、低耗的目标。与球磨机组成粉磨系统,产品细度调整范围宽,水泥抗压强度有效提高。
【客户情况】
河南**矿产公司,曾在我司订购了2台预粉立磨机。
【客户反馈】
百瑞彩票 公司在同力订购的预粉立磨机不仅提高了生产效率,而且大大增加了公司的产能,第一年投入使用就为公司挽回了成本,同时,创造了额外的100多万净业绩。
立磨机规格 | 产量(t/h) | 细度(80um筛余) | 水分 | 功率(kw) |
ZJTL1820C | 16~20 | R≤9% | ≤0.5% | 260 |
ZJTL2030C | 23~26 | 35 | ||
ZJTL2320C | 30~35 | 510 | ||
ZJTL2620C | 44~49 | 700 | ||
ZJTL2920C | 57~60 | 900 | ||
ZJTL3270C | 62~80 | 1230 | ||
ZJTL3680C | 112~115 | 1800 |