![]() |
![]() |
![]() |
百瑞彩票浓缩机主要用于湿式选矿作业中精矿、中矿以及尾矿浆的脱水。广泛用于冶金、化工、煤炭、非金属选矿、环保等行业。 高效浓缩机实际上并不是单纯的沉降设备,而是结合泥浆层过滤特性的一种新型脱水设备。浓缩机可应用于冶金、矿山、煤炭、化工、建材、环保等部门矿泥、废水、废渣的处理,对提高回水利用率和底流输送浓度以及保护环境具有重要意义。

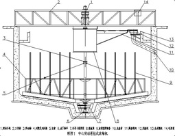
浓缩机一般主要由浓缩池、粑架、传动装置、粑架提升装置、给料装置、卸料装置和信号安全装置等组成。工作的主要特点是在待浓缩的矿浆中添加一定量的絮凝剂,使矿浆中的矿粒形成絮团,加快其沉降速度,进而达到提高浓缩效率的目的。

百瑞彩票(1)添加絮凝剂增大沉降固体颗粒的粒径,从而加快沉降速度;
百瑞彩票(2)装设倾斜板缩短矿粒沉降距离,增加沉降面积;
(3)发挥泥浆沉积浓相层的絮凝、过滤、压缩和提高处理量的作用;
(4)配备有完整的自控设施.
百瑞彩票浓缩机分为中心传动式浓缩机,周边传动式浓缩机,高效浓缩机,污泥浓缩机,间歇式浓缩机,竖流式和辐流式连续式浓缩机。本公司生产的浓缩机主要有NZ、NX、NZY型中心传动式和NG、NT、NJ、NTJ型周边传动式两大系列。
