300t/d活性石灰生产线
原料:石灰石
百瑞彩票生产能力: 100 t/d
百瑞彩票原料粒度:≤40 mm
原料水份:≤1%
成品质量标准: CaO ≥90%, SiO2≤2.5%, 活性度≥320,生过烧率 3.0-5.0%
煅烧机理:CaCO3 —加热→ CaO + CO2↑
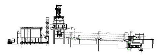
活性石灰生产线将竖式预热器、回转窑、蓖式冷却器、烟气处理系统、原料输送系统、成品输送系统、原煤粉磨系统等组成一条完整的生产线,生产出合格的高活性生石灰。
百瑞彩票活性石灰生产线采用技术先进,性能可靠的DCS中央控制系统,实现各设备运行的相互连锁,在主控制室集中操作管理。
*环保
百瑞彩票除尘设备排放:<50mg/Nm³
通风设备排放:<50mg/Nm³
百瑞彩票噪音:白天<65db, 夜晚<55db
*节能
热耗:4.8GJ/ton,电:45Kwh/ton,水:1m³/ton,
a. 竖式预热器,低阻力型预热器,热交换效果好,阻力低,造价低
百瑞彩票b. 烟气处理系统中配置了多管冷却器降低温度
c. 蓖式冷却机二次风溫高,即冷效果好,出料温度低,石灰活性度高,能耗低
d. 煤磨使用风扫煤磨
百瑞彩票e. 风机使用变频调速,篦冷机传动使用带变频调速的液压系统,大大降低了电耗

百瑞彩票阿尔及利亚日产300吨活性石灰生产线
百瑞彩票【项目规模】:日产活性石灰300吨
【设计产能】:≥15吨/时
百瑞彩票【实际产能】:20-25吨/时
【活性度】:≥320
百瑞彩票【单位产量电耗】:45Kwh/ton
百瑞彩票【总工期】:从设计开始到整条生产线正常运营的总工期为5-6个月。
百瑞彩票【承建方】:上海同力重型机械有限公司