上一篇:生料立磨技术参数分析
下一篇:水泥生料超细立磨机工作效率如何
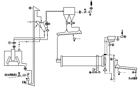
在水泥生产过程中,粉磨是电耗高的工艺环节,约占水泥综合电耗的60~70%,而长期以来,电能利用率仅有7%左右的球磨机一直在粉磨中占主导地位,粉磨工艺的节能改造便成为水泥界研究的重点,近二十年来,与传统球磨机相配套的预粉磨装备技术有了长足的发展。预粉磨装备通过部分或全部地取代球磨机第一仓粉磨任务,使物料的破碎主要在预粉磨装备中完成,从而提高整个粉磨系统的能量利用率,且能在降低能耗的同时保证水泥成品的质量与球磨生产水泥相当。可以说,在立磨百瑞彩票终粉磨系统大规模工业应用之前,预粉磨装备的利用是水泥工业粉磨工艺发展的又一主要途径,而且预粉磨装备在现有球磨系统上进行节能技改有着更为明显的优势。

采用外循环水泥立磨预粉磨技术,并结合选粉机选粉工艺,在预粉磨过程中能磨制出较多的粉状物料(<0.3mm),在选粉工艺上能将该部分细粉选出、又不会使1mm以上粒径的物料带出V型选粉机,将这部分细粉喂入球磨机进行研磨,能大大提高球磨机的产量,降低工序电耗,将水泥预粉磨系统的粉磨电耗降低到一个新的水平,同时为中国建材行业水泥粉磨节能降耗提供了一个新的选择。
上一篇:生料立磨技术参数分析
下一篇:水泥生料超细立磨机工作效率如何